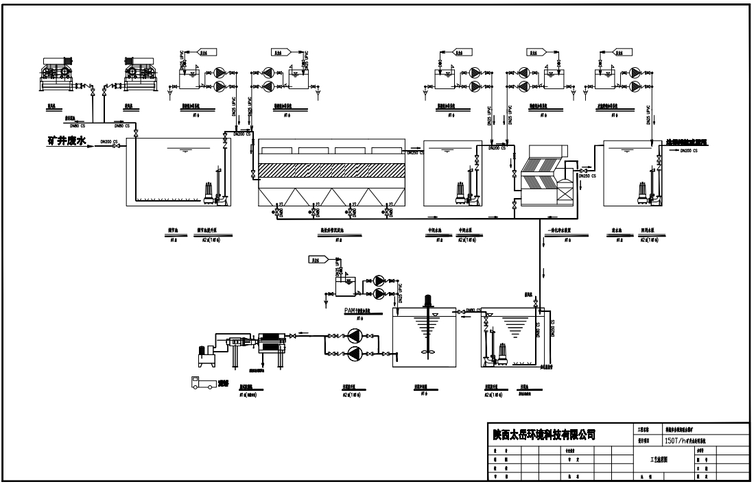
杏树沟煤矿150T/h矿井水处理系统
项目名称:杏树沟煤矿150m3/h矿井水处理系统
处理水量:150m3/h
工程周期:90日历天
设备使用良好,稳定运行,顺利交接使用。
项目名称:杏树沟煤矿150m3/h矿井水处理系统
处理水量:150m3/h
工程周期:90日历天
设备使用良好,稳定运行,顺利交接使用。