超滤、反渗透装置
一、超滤装置
1)说明
与传统滤料过滤工艺相比,超滤工艺是一种过滤精度更高的水处理技术,它可有效地去除细菌、病毒、大分子有机物、胶体和颗粒物。具有抗污染、药剂用量少、水回收率高站地面积小的特点。
中空超滤为外压式膜组件,中空丝材质为聚偏氟乙烯,公称切割分子量10万道尔顿,使用时原水进入中空膜丝内,产水径向透过膜壁内腔,对外径向透过膜壁,产水浊度不大于0.1NTU。
超滤膜组件可以按全量过滤方式操作,也可以按错流过滤方式操作。全量过滤操作中所有原水全部转化成产水,而在错流方式中还有一部分原水从浓水出口排出,成为浓缩液。过滤时水在中空膜组件内的流动方式为内进外出,即给水经组件端面分布,同时进入各中空膜丝内部,沿中空丝管内流动,沿途经中空膜丝壁面透出,各中空丝外表面透出的产水汇集到中心管后流出膜组件。膜丝的材质为亲水性聚醚砜,耐污染、耐余氯、耐化学清洗。超滤膜的截留膜分离孔径约为25nm,可有效去除微小颗粒、胶体、细菌和病毒等。该超滤膜对>1μm的颗粒物的去除率为106,比传统过滤器的过滤精度高,占地面积小。
由于在膜上形成固体物质积累时膜通量会衰减,膜组件采用周期性频繁反冲洗的方式恢复通量。膜自身具备的良好化学稳定性,能够满足进行化学清洗和化学增强反洗的需求。
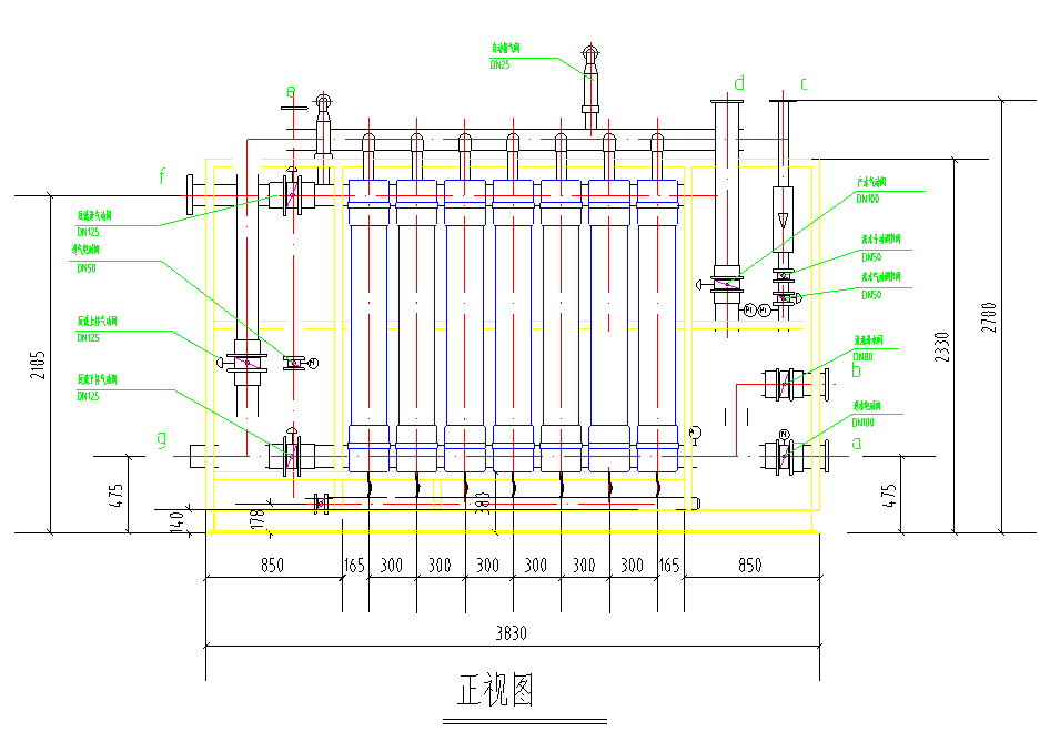
超滤装置系统:由中空纤维膜组件,膜壳、清洗箱、清洗泵、冲洗泵、仪表阀门等组成。
与传统滤料过滤工艺相比,超滤工艺是一种过滤精度更高的水处理技术,它可有效地去除细菌、病毒、大分子有机物、胶体和颗粒物。具有抗污染、药剂用量少、水回收率高站地面积小的特点。
中空超滤为内压式膜组件,中空丝材质为聚偏氟乙烯,公称切割分子量10万道尔顿,使用时原水进入中空膜丝内,产水径向透过膜壁内腔,对外径向透过膜壁,产水浊度不大于0.1NTU。
超滤膜组件可以按全量过滤方式操作,也可以按错流过滤方式操作。全量过滤操作中所有原水全部转化成产水,而在错流方式中还有一部分原水从浓水出口排出,成为浓缩液。过滤时水在中空膜组件内的流动方式为内进外出,即给水经组件端面分布,同时进入各中空膜丝内部,沿中空丝管内流动,沿途经中空膜丝壁面透出,各中空丝外表面透出的产水汇集到中心管后流出膜组件。膜丝的材质为亲水性聚醚砜,耐污染、耐余氯、耐化学清洗。超滤膜的截留膜分离孔径约为25nm,可有效去除微小颗粒、胶体、细菌和病毒等。该超滤膜对>1μm的颗粒物的去除率为106,比传统过滤器的过滤精度高,占地面积小。
由于在膜上形成固体物质积累时膜通量会衰减,膜组件采用周期性频繁反冲洗的方式恢复通量。膜自身具备的良好化学稳定性,能够满足进行化学清洗和化学增强反洗的需求。
超滤装置系统:由中空纤维膜组件,膜壳、清洗箱、清洗泵、冲洗泵、仪表阀门等组成。
3)中空纤维超滤膜产品的特点
公司在中空纤维超滤产品的全生产过程中,严格依据ISO9001:2000标准的要求进行全程管理和控制,涵盖设计控制、采购控制、进货检验、生产过程控制与检验、成品检验、产品标识控制和产品防护控制等各过程。
4)超滤的主要求技术特征:
(1) 耐氧化、抗污染的聚偏氟乙烯(PVDF)材料—产品寿命更长
目前全球队超滤主流产品分为聚偏氟乙烯(PVDF)和聚醚砜(PES)两大类主体材料。PVDF的重要优点是其化学稳定性远远优于聚醚砜材料,特别是耐受氧化剂清洗的能力更强。而氧化剂清洗是解决有机物污堵超滤膜的主要手段,因此PVDF材料的超滤膜更耐久,长期通量更稳定。
(2)采用专利的共混配方—强度更高
专利的共混配方使得该超滤膜的抗拉和抗压强度大大提高,从而更好地适应用于污沙漠呈者废水时的恶劣运行状况和清洗条件,解决了其它PVDF膜抗拉和抗压强度低的缺陷。
(3) 适应范围更宽的外压式结构—纳污量大、易清洗
在超滤元件中,中空纤维膜丝内腔空间是固定的,而膜丝之间存在着自由活动的空间。因此采用上压式进水方式,对于进水最大颗粒尺寸的限制以及进水悬浮物浓度的限制都更宽松,因而大大降低了过滤流道被堵塞的风险或几率。同样地,由于膜丝之间存在自由适动空间,外压式超滤可以采用最廉价、高效的气水混合擦洗方式减轻超滤膜的污堵;内压式则不能采用气水混合擦洗的方式,而往往必须采用频繁的化学分散清洗来缓解该问题。
超滤装置配套系统功能:
单台设备配套工作仪表及监视仪表:
动态显示系统的运行工况(出水浊度、出水流量、进水压仪、出水压力表等参数);
超滤装置出水管设有浊度仪,用于监测超滤装置的出水浊度。
超滤装置进水设有压力仪,用于监测进水压力和控制原水提升泵进水频率。
超滤装置出水管设有电磁流量计,用于监测装置产水和控制超滤进水电动调节阀的开启度。
二、反渗透装置
1)说明:
反渗透是一种借助选择透过(半透过)性膜的功能、以压力为推动力的膜分离技术,膜元件由反渗透膜导流布和中心管等制作而成,将多根RO膜元件装入玻璃钢耐压容器内,组成RO组件。本装置是脱盐系统的关键,成熟的工艺设计、合理的控制、操作及管理,直接决定着系统的正常、稳定运行;并关系到反渗透膜的使用寿命,经反渗透处理后的出水,去除了绝大部分无机盐和几乎所有的有机物、微生物(细菌、热源等)从而确保了本系统产品水的高质量、高品质。
完成预处理后的出水水质由淤积密度指数SDI仪监测,当SDI值<4时,即可由高压泵增压后进入反渗透系统,RO出水一部分(预脱盐水)去回用水池,另一部分未透过水由管道汇集后成浓水(主要含有盐份、机械杂质、胶体、有机物等)进入浓水箱进入浓水反渗透系统。
反渗透主体部件选用美国苏伊士公司生产的高脱盐率,低压抗污染型AG8040-400FR.34芳香族聚酰胺膜元件(或等同产品),该膜元件属节能型低压膜,是世界上先进的卷式RO膜元件之一,具有结构紧凑,产水量特别大(单支膜元件产水量可达1.0m3/h),脱盐率高(单支膜试验数据>99.7%),操作压力低,耐细菌侵蚀性好,适用PH范围广(PH为3~10)的优点。配套使用的膜外壳为R8040C30S-6W(B)玻璃钢压力容器,适用于AG8040-400FR.34的膜元件6支装。
反渗透装置共1套,产水量为25m3/h,单套装置AG8040-400FR.34膜元件为30支,选用玻璃钢压力容器共5支按3:2排列, 一级二段,选用高压泵为南方泵业的多级离心泵,型号为:CDMF32-12,流量为36m3/h,扬程为:147m,电机功率:22KW。反渗透装置在水质分离过程中无相变,脱盐率高,体积小,易于自控运行,适应范围广,无环境污染。
进水流量:33.33m³/h 产水流量: 25m³/h
浓水量:8.33m³/h 出水电导率:~100us
工作压力:14-15bar 进水最低温度:18~25℃
水回收率:75% RO膜设计使用年限:3~5年
进水PH值:7~7.5
浓水侧郎格里尔指数:FI=1.3>0浓水侧将发生结垢现象,应投加进口复合阻垢剂。
反渗透配套系统功能:
单台设备配套工作仪表及监视仪表:
动态显示系统的运行工况(进、出水电导、高压泵的高、低压保护开关、出水流量、浓水流量等参数);
反渗透设置高压泵进口设低压保护器,当高压泵进水压力<0.1Mpa时,高压泵自动停止工作。
反渗透高压泵出口设高压传感器,当工作压力大于某一设定值,高压泵停止运行,以防损坏后级管道及膜元件。
高压泵出口设有一进口电动慢开阀,在高压泵启动时,电动慢开阀同量启动,以防止反渗透装置的管道及膜元件受高压的瞬时冲击而受损。
高压泵的启动为降压启动,有利于保护水泵,防止膜元件受高压泵启动时受瞬时高压的冲击。
进水、浓水、产水阀:主要调节RO进水量、产水量、进水压力、浓水压力及回收率。
电导仪:电导仪用于监测RO进、出水电导率的变化情况。
高压泵:增压满足RO膜元件进水压力要求。
止回阀:主要用于停机后,防止RO压力管中的回压而损坏高压泵及泵前低压管道件。
产品水防爆膜,有利于保护膜元件,防止反渗透装置由于误操作而损坏系统管道及膜元件。反渗透装置的冲洗水泵,及化学清洗系统。





